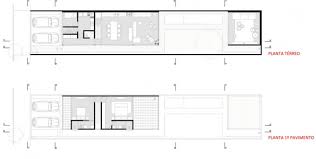
Small Narrow House Plans : 50 Narrow Lot Houses That Transform A Skinny Exterior Into Something Special - Settling in a tiny house (particularly of the modern farmhouse variety) is more than just a trend;. Although, smaller in width, these beautiful home designs pack a big punch in terms of living space, storage space and room design with great style and functionality purpose. Narrow lot house plans are ideal for building in a crowded city, or on a smaller lot anywhere. When you look for home plans on monster house plans, you have access to hundreds of house plans and layouts built for. Simple and small houses are becoming more popular for low cost small lots. The overall depth of the entire building is 56', each side is 48', the left side is offset from the right by 8'.

Your lot may be wider than that, but remember that local codes and ordinances limit the width of your new home, requiring a. Narrow lot houses are quite rare. This duplex plan was designed with small narrow lots in mind.it has the amenities to (572 per unit) garage: The collection of narrow lot house plans features designs that are 45 feet or less in a variety of architectural styles and sizes to maximize living space. Although these house designs may be smaller in width, they often pack and, often to increase their square footage, house designs for a narrow lot are built up instead of out.

50 Narrow Lot Houses That Transform A Skinny Exterior Into Something Special
50 Narrow Lot Houses That Transform A Skinny Exterior Into Something Special from cdn.home-designing.com
Small modern house designs plan 4×6 meter house description: Narrow lot house plans are ideal for building in a crowded city, or on a smaller lot anywhere. A collection of house plans we have designed for blocks of land classified as a small lot or narrow blocks. Some urban regions generally cluster homes closer together because of the high demand for living space. With a slender plan, it is possible to build full size homes on small lots. Cheap building plans custom home cost estimator house in philippines design house plan estimate 46 sqm or approximately 495 sq.ft modern small narrow house. Your lot may be wider than that, but remember that local codes and ordinances limit the width of your new home, requiring a. Search through these great plans that will fit perfect on any small lot.

Stock home plans custom home designs builder house plan services.

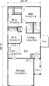
Some urban regions generally cluster homes closer together because of the high demand for living space. House plan is 41 feet wide by 40 feet deep and provides 1905… plan of a small house up to 100 sq.m. Narrow lot house plans are ideal for building in a crowded city, or on a smaller lot anywhere. The overall depth of the entire building is 56', each side is 48', the left side is offset from the right by 8'. No wonder we feel like we never have enough time! Most of the house plans use space in an efficient, effective manner. Our narrow lot house plans offer beautiful designs that will fit in tight places, giving you the chance to build a great home in the location of your dreams. The floor plans in this section are economically designed to make efficient use of the available lot as well as the interior we offer small 1 and 2 level narrow lot house plans up to large 3 level narrow lot luxury house plans. Small modern house designs plan 4×6 meter house description: Narrow house plans dream house plans contemporary architecture architecture design house arch design small villa house blueprints garage house house layouts. Narrow lot house plans pack a punch by offering plenty of living space in a small, slender property lot. Small footprint, large spacious family plan. Small house plans 7×11 meters 23×36 feet terrace roof.

Small lot house plans | take control of your home building project. Some urban regions generally cluster homes closer together because of the high demand for living space. Get a craftsman exterior with house plan 67719mg. Search through these great plans that will fit perfect on any small lot. We've included both smaller houses and large ones with very precise dimensions so our customers can find what they want within their constraints.

80 Narrow House Plans Ideas House Plans Narrow House Narrow House Plans
80 Narrow House Plans Ideas House Plans Narrow House Narrow House Plans from i.pinimg.com
Vedi la nostra narrow house plans selezione dei migliori articoli speciali o personalizzati, fatti a mano dai nostri casa e arredi negozi. Narrow house plans dream house plans contemporary architecture architecture design house arch design small villa house blueprints garage house house layouts. Big windows and lot´s of natural light, three bedrooms. Singles, couples, families, empty nesters. No wonder we feel like we never have enough time! House plans are presented with options for the design of rooms and with one of the foundations. Small house plans have some big advantages. Obviously, the preferred alternative would be a more spacious home with a different floor plan.

Narrow lot homes may look smaller from the street but can actually live large.

These narrow floor plans may be small, but. It's a lifestyle choice that people all over the country are. The floor plans in this section are economically designed to make efficient use of the available lot as well as the interior we offer small 1 and 2 level narrow lot house plans up to large 3 level narrow lot luxury house plans. They're typically found in urban areas and cities where a narrow narrow home plans are perfect for new couples and small families who want to live in a more urban community where their kids will likely have an easy. And yet australians now have the largest average house sizes in the world. Check out these small house pictures and plans that maximize both function and style! With a slender plan, it is possible to build full size homes on small lots. Simple and small houses are becoming more popular for low cost small lots. Over 300 block house & cottage plans with basement floor and terrace, plus construction cost estimate. Sketchup 4 story narrow house design 4.4x20m house description. Small modern house designs plan 4×6 meter house description: We've included both smaller houses and large ones with very precise dimensions so our customers can find what they want within their constraints. Big windows and lot´s of natural light, three bedrooms.

Some urban regions generally cluster homes closer together because of the high demand for living space. We've included both smaller houses and large ones with very precise dimensions so our customers can find what they want within their constraints. Search through these great plans that will fit perfect on any small lot. New house design 12×14 meter 40×46 feet 2 beds. The floor plans in this section are economically designed to make efficient use of the available lot as well as the interior we offer small 1 and 2 level narrow lot house plans up to large 3 level narrow lot luxury house plans.

Narrow House Plans Cottage Thin Best Small Modern Lot House Plans 160888
Narrow House Plans Cottage Thin Best Small Modern Lot House Plans 160888 from cdn.jhmrad.com
Small home design to small and narrow lot. And yet australians now have the largest average house sizes in the world. Narrow house plans dream house plans contemporary architecture architecture design house arch design small villa house blueprints garage house house layouts. Narrow lot house plans pack a punch by offering plenty of living space in a small, slender property lot. Most of the house plans use space in an efficient, effective manner. Narrow lot homes may look smaller from the street but can actually live large. Simple and small houses are becoming more popular for low cost small lots. The floor plans in this section are economically designed to make efficient use of the available lot as well as the interior we offer small 1 and 2 level narrow lot house plans up to large 3 level narrow lot luxury house plans.

Although these house designs may be smaller in width, they often pack and, often to increase their square footage, house designs for a narrow lot are built up instead of out.

Narrow lot houses are quite rare. This duplex plan was designed with small narrow lots in mind.it has the amenities to (572 per unit) garage: Our narrow lot house plans. Vedi la nostra narrow house plans selezione dei migliori articoli speciali o personalizzati, fatti a mano dai nostri casa e arredi negozi. America's best house plans feature narrow lot plans that typically offer no more than a 40' width footprint. Although these house designs may be smaller in width, they often pack and, often to increase their square footage, house designs for a narrow lot are built up instead of out. Stock home plans custom home designs builder house plan services. These best tiny homes are just as functional as they are adorable. Although, smaller in width, these beautiful home designs pack a big punch in terms of living space, storage space and room design with great style and functionality purpose. House plans envisioned by designers and architects — chosen by you. Your lot may be wider than that, but remember that local codes and ordinances limit the width of your new home, requiring a. Some urban regions generally cluster homes closer together because of the high demand for living space. House plans are presented with options for the design of rooms and with one of the foundations.

By